Model: Excavator ZX135US-5B
Format: PDF
Language: English
- Hitachi ZX135US-5B Excavator Operational Principle Manual (Vol. No.TODAE-EN)
- Hitachi ZX135US-5B Excavator Troubleshooting Manual (Vol. No.TTDAE-EN)
- Hitachi ZX135US-5B Excavator Workshop Manual (Vol. No.WDAE-EN)
- Operation Manual
- Parts Catalog
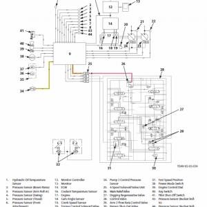
- Electrical Circuit Diagram
SI Units (International System of Units) are used in those manual.
ZX135US-5B Manual Composition
The Hitachi ZX135US-5B manual consists of the Service Manual and the Workshop Manual.
- Information included in the Service Manual: Technical information needed for redelivery and delivery, operation and activation of all devices and systems, operational performance tests, and troubleshooting procedures.
- Information included in the Workshop Manual: Technical information needed for maintenance and repair of the machine, tools and devices needed for maintenance and repair, maintenance standards, and removal / installation and assemble / disassemble procedures.
To avoid injury and damage refer to the service manual and be sure to use appropriate lifting techniques and equipment when lifting heavy parts.
The Hitachi excavators ZX135US-5B has been built to deliver reliable performance with fewer emissions and less fuel. Less fuel consumption for owners, easier for operators and better for the environment, the ZX135US-5B incorporates the latest technologies made for the hydraulic, electric and capacitor-powered excavators.












