For Model: Excavator ZX190LC-5B and ZX190LC-6
Format: PDF
Language: English
Service Manual consists of the following:
For Model ZX190LC-5B:
Service Manual (Troubleshooting) : Vol. No.TODBJ
Service Manual (Operation) : Vol. No.TTDBJ
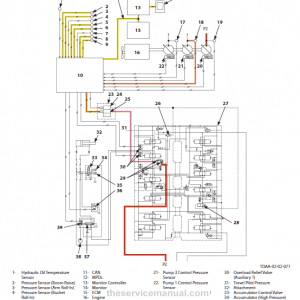
Circuit Diagram
For Model ZX190LC-6:
Service Manual (Troubleshooting) : Vol. No.TODBS50
Service Manual (Operation) : Vol. No.TTDBS50
Workshop Manual : Vol. No.WDBS50
Circuit Diagram
SI Units (International System of Units) are used in those manual.
Manual guide composition
Hitachi ZX190LC-5B and ZX190LC-6 service manual consists of the Operating, Troubleshooting and the Workshop Manual.
- Information included in the Service Manual: Technical information needed for redelivery and delivery, operation and activation of all devices and systems, operational performance tests, and troubleshooting procedures.
- Information included in the Workshop Manual: Technical information needed for maintenance and repair of the machine, tools and devices needed for maintenance and repair, maintenance standards, and removal / installation and assemble / disassemble procedures.
To avoid injury and damage refer to the service manual and be sure to use appropriate lifting techniques and equipment when lifting heavy parts.
The ZX190LC-6 advantages from unique Hitachi technology developed specifically for the Zaxis-6 medium excavator vary. it’s equipped with our industry-leading TRIAS II mechanism, supported intelligent three-pump technology. This leads to a 12-tone system fuel saving in ECO mode (6% power mode), whereas providing you with identical levels of productivity.
Thanks to its light-weight framing, the ZX190LC-6 is additionally appropriate to get the job done on softer terrains if needed












