Table of Contents (Workshop Manual)
SPECIFICATIONS
1 – Outline
2 – Specification
3 – Attachment dimension
MAINTENANCE
11 – Tools
12 – Standard maintenance time schedule
13 – Maintenance standard and test procedure
SYSTEM
21 – Mechatro control system
22 – Hydraulic system
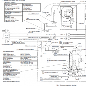
23 – Electric system
24 – Components system
25 – Air-conditioner system
DISASSEMBLING
31 – Disassembling and assembling
32 – Attachment
33 – Upper structure
34 – Travel system
TROUBLESHOOTING
41 – Troubleshooting (mechatro control)
42 – Troubleshooting (Hydraulic)
43 – Troubleshooting (Electric)
44 – Troubleshooting (Engine)
ENGINE
51 – Engine
OPT
63 – Mounting the breaker and nibbler & breaker
The New Holland manual is applicable for the model namely : E200SR
The Workshop Manual is wrote by New Holland repair specialist. It provides important information on carrying out repair work expertly. Please go carefully through the Workshop Manual of the wheeled excavator before starting any repair work. Use the Workshop Manual as a reference book and source of information even if you are familiar with wheeled excavator technology. Using the Workshop Manual, the experience construction machine mechanic can carry out any necessary repairs expertly.
Sections of the Manual
The Manual is into main groups and subgroups, and covers any previous version of the machine. Any additions or modifications which can happen at a later date are not describe in this manual. The require information can easily be found by referring to the table of contents. For reasons of clarity, some of the illustrations are present in simplified form. Differences from the actual version are therefore possible if this adds to the clarity of the information.
REPAIR and Parts
Carry out any necessary repair work as soon as possible. This reduces repair costs and increases the availability of your wheeled excavator When doing any work on the wheeled excavator, always observe the instructions given in the Workshop Manual. Extensive works not describe in this Workshop Manual would be done for you by your dealer. Always use original spare parts only.












